Volledig NEN 2580 conform
Snelle NEN 2580 meetrapporten, plattegronden & woningvideo’s
Lever je plattegronden, schetsen, video's of foto’s aan en ontvang binnen één werkdag een compleet NEN 2580 meetrapport, woningvideo of plattegrond. Geen extra werk, geen onnodige afspraken op locatie.
Sam Schouten
Volledig NEN 2580 conform
Snelle NEN 2580 meetrapporten, plattegronden & woningvideo’s
Lever je plattegronden, schetsen, video's of foto’s aan en ontvang binnen één werkdag een compleet NEN 2580 meetrapport, woningvideo of plattegrond. Geen extra werk, geen onnodige afspraken op locatie.
Sam Schouten
Volledig NEN 2580 conform
Snelle NEN 2580 meetrapporten, plattegronden & woningvideo’s
Lever je plattegronden, schetsen, video's of foto’s aan en ontvang binnen één werkdag een compleet NEN 2580 meetrapport, woningvideo of plattegrond. Geen extra werk, geen onnodige afspraken op locatie.
Sam Schouten



Vertrouwd door onder andere:
Wat ik doe
Ik bied een compleet pakket voor vastgoedpresentatie: van NEN 2580 meetrapporten tot 2D-plattegronden en woningvideo’s. Alles wordt geheel op afstand gemaakt op basis van jouw aangeleverde plattegronden, foto’s of video's. Snel en zorgeloos, ideaal voor makelaars, fotografen en particulieren.


Meetrapporten volgens de NEN2580 meetinstructie
Een meetrapport is van essentieel belang bij het opstellen van een nauwkeurige woningpresentatie of taxatie. Mijn rapporten worden zorgvuldig samengesteld volgens de meetinstructie Gebruiksoppervlakte Woningen (gebaseerd op NEN 2580) en geven volledige duidelijkheid over de gebruiksoppervlakte van een woning. Ze zijn ideaal voor makelaars, vastgoedfotografen en particulieren die zekerheid willen over de vierkante meters. De rapporten sluiten aan bij de standaarden van makelaars en Funda, en vormen een betrouwbare basis bij verkoop of financiering.


Meetrapporten volgens de NEN2580 meetinstructie
Een meetrapport is van essentieel belang bij het opstellen van een nauwkeurige woningpresentatie of taxatie. Mijn rapporten worden zorgvuldig samengesteld volgens de meetinstructie Gebruiksoppervlakte Woningen (gebaseerd op NEN 2580) en geven volledige duidelijkheid over de gebruiksoppervlakte van een woning. Ze zijn ideaal voor makelaars, vastgoedfotografen en particulieren die zekerheid willen over de vierkante meters. De rapporten sluiten aan bij de standaarden van makelaars en Funda, en vormen een betrouwbare basis bij verkoop of financiering.

Woningvideo's
Geef je woningpresentatie een boost met een stijlvolle video. Ideaal voor social media, Funda of je eigen website. Je levert de beelden aan, ik monteer alles tot een vloeiende video met muziek, knipwerk op de beat en eventueel een intro of outro. Snel geleverd en helemaal in lijn met de uitstraling van de woning.

Woningvideo's
Geef je woningpresentatie een boost met een stijlvolle video. Ideaal voor social media, Funda of je eigen website. Je levert de beelden aan, ik monteer alles tot een vloeiende video met muziek, knipwerk op de beat en eventueel een intro of outro. Snel geleverd en helemaal in lijn met de uitstraling van de woning.

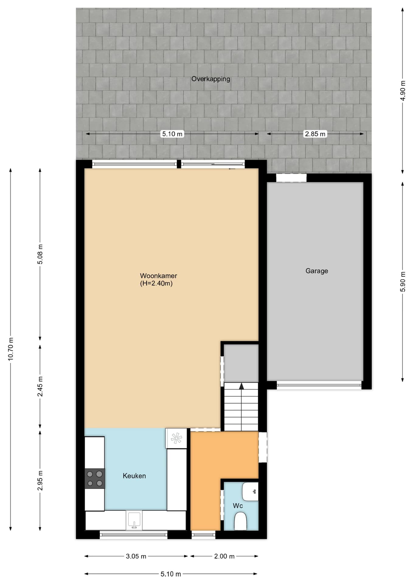
Plattegronden
Wil je een visuele weergave van de woning? Naast het NEN 2580 meetrapport bied ik een professionele 2D plattegrond. Deze wordt op basis van de metingen gemaakt en geeft een helder overzicht van de indeling. Perfect om je rapport visueel te ondersteunen en extra waarde voor je klanten toe te voegen.

Plattegronden
Wil je een visuele weergave van de woning? Naast het NEN 2580 meetrapport bied ik een professionele 2D plattegrond. Deze wordt op basis van de metingen gemaakt en geeft een helder overzicht van de indeling. Perfect om je rapport visueel te ondersteunen en extra waarde voor je klanten toe te voegen.
100% remote
Tijd besparen
Efficiënt
Vaste partner
White-label
NEN2580
Flexibel
Eigen huisstijl
Vraag vrijblijvend een voorbeeldrapport of woningvideo aan
Waarom SAM2580?
SAM2580 is er voor makelaars, vastgoedfotografen en particulieren die snel een professioneel meetrapport, plattegrond of woningvideo nodig hebben. Alles wordt uitgewerkt op basis van aangeleverde informatie, zodat jij geen extra werk hebt, maar wél een complete woningpresentatie kunt leveren.
Vaste partner met scherpe tarieven
Jij stuurt het door onder je eigen naam en branding. Ik lever white-label en blijf op de achtergrond.
Volledig remote aangeleverd
Op basis van jouw plattegronden, schetsen en foto’s. Geen gedoe met planning of afspraken.
Binnen 1 werkdag geleverd
Korte doorlooptijd zodat jij je klant direct kunt bedienen en door kunt met je volgende shoot. Makkelijk én snel.
Altijd flexibel meedenken
Extra wensen? Spoed? Huisstijl? Speciale intro nodig? Ik pas het aan op jouw workflow.
Ontzorging = meer omzet
Jij focust op fotografie en klantcontact, ik fix de meetrapporten / plattegronden / video’s.
Vaste partner met scherpe tarieven
Jij stuurt het door onder je eigen naam en branding. Ik lever white-label en blijf op de achtergrond.
Volledig remote aangeleverd
Op basis van jouw plattegronden, schetsen en foto’s. Geen gedoe met planning of afspraken.
Binnen 1 werkdag geleverd
Korte doorlooptijd zodat jij je klant direct kunt bedienen en door kunt met je volgende shoot. Makkelijk én snel.
Altijd flexibel meedenken
Extra wensen? Spoed? Huisstijl? Speciale intro nodig? Ik pas het aan op jouw workflow.
Ontzorging = meer omzet
Jij focust op fotografie en klantcontact, ik fix de meetrapporten / plattegronden / video’s.
Vaste partner met scherpe tarieven
Jij stuurt het door onder je eigen naam en branding. Ik lever white-label en blijf op de achtergrond.
Volledig remote aangeleverd
Op basis van jouw plattegronden, schetsen en foto’s. Geen gedoe met planning of afspraken.
Binnen 1 werkdag geleverd
Korte doorlooptijd zodat jij je klant direct kunt bedienen en door kunt met je volgende shoot. Makkelijk én snel.
Altijd flexibel meedenken
Extra wensen? Spoed? Huisstijl? Speciale intro nodig? Ik pas het aan op jouw workflow.
Ontzorging = meer omzet
Jij focust op fotografie en klantcontact, ik fix de meetrapporten / plattegronden / video’s.
Vaste partner met scherpe tarieven
Jij stuurt het door onder je eigen naam en branding. Ik lever white-label en blijf op de achtergrond.
Volledig remote aangeleverd
Op basis van jouw plattegronden, schetsen en foto’s. Geen gedoe met planning of afspraken.
Binnen 1 werkdag geleverd
Korte doorlooptijd zodat jij je klant direct kunt bedienen en door kunt met je volgende shoot. Makkelijk én snel.
Altijd flexibel meedenken
Extra wensen? Spoed? Huisstijl? Speciale intro nodig? Ik pas het aan op jouw workflow.
Ontzorging = meer omzet
Jij focust op fotografie en klantcontact, ik fix de meetrapporten / plattegronden / video’s.
Vaste partner met scherpe tarieven
Jij stuurt het door onder je eigen naam en branding. Ik lever white-label en blijf op de achtergrond.
Volledig remote aangeleverd
Op basis van jouw plattegronden, schetsen en foto’s. Geen gedoe met planning of afspraken.
Binnen 1 werkdag geleverd
Korte doorlooptijd zodat jij je klant direct kunt bedienen en door kunt met je volgende shoot. Makkelijk én snel.
Altijd flexibel meedenken
Extra wensen? Spoed? Huisstijl? Speciale intro nodig? Ik pas het aan op jouw workflow.
Ontzorging = meer omzet
Jij focust op fotografie en klantcontact, ik fix de meetrapporten / plattegronden / video’s.
Vaste partner met scherpe tarieven
Jij stuurt het door onder je eigen naam en branding. Ik lever white-label en blijf op de achtergrond.
Volledig remote aangeleverd
Op basis van jouw plattegronden, schetsen en foto’s. Geen gedoe met planning of afspraken.
Binnen 1 werkdag geleverd
Korte doorlooptijd zodat jij je klant direct kunt bedienen en door kunt met je volgende shoot. Makkelijk én snel.
Altijd flexibel meedenken
Extra wensen? Spoed? Huisstijl? Speciale intro nodig? Ik pas het aan op jouw workflow.
Ontzorging = meer omzet
Jij focust op fotografie en klantcontact, ik fix de meetrapporten / plattegronden / video’s.
Vaste partner met scherpe tarieven
Jij stuurt het door onder je eigen naam en branding. Ik lever white-label en blijf op de achtergrond.
Volledig remote aangeleverd
Op basis van jouw plattegronden, schetsen en foto’s. Geen gedoe met planning of afspraken.
Binnen 1 werkdag geleverd
Korte doorlooptijd zodat jij je klant direct kunt bedienen en door kunt met je volgende shoot. Makkelijk én snel.
Altijd flexibel meedenken
Extra wensen? Spoed? Huisstijl? Speciale intro nodig? Ik pas het aan op jouw workflow.
Ontzorging = meer omzet
Jij focust op fotografie en klantcontact, ik fix de meetrapporten / plattegronden / video’s.
Vaste partner met scherpe tarieven
Jij stuurt het door onder je eigen naam en branding. Ik lever white-label en blijf op de achtergrond.
Volledig remote aangeleverd
Op basis van jouw plattegronden, schetsen en foto’s. Geen gedoe met planning of afspraken.
Binnen 1 werkdag geleverd
Korte doorlooptijd zodat jij je klant direct kunt bedienen en door kunt met je volgende shoot. Makkelijk én snel.
Altijd flexibel meedenken
Extra wensen? Spoed? Huisstijl? Speciale intro nodig? Ik pas het aan op jouw workflow.
Ontzorging = meer omzet
Jij focust op fotografie en klantcontact, ik fix de meetrapporten / plattegronden / video’s.
Vaste partner met scherpe tarieven
Jij stuurt het door onder je eigen naam en branding. Ik lever white-label en blijf op de achtergrond.
Volledig remote aangeleverd
Op basis van jouw plattegronden, schetsen en foto’s. Geen gedoe met planning of afspraken.
Binnen 1 werkdag geleverd
Korte doorlooptijd zodat jij je klant direct kunt bedienen en door kunt met je volgende shoot. Makkelijk én snel.
Altijd flexibel meedenken
Extra wensen? Spoed? Huisstijl? Speciale intro nodig? Ik pas het aan op jouw workflow.
Ontzorging = meer omzet
Jij focust op fotografie en klantcontact, ik fix de meetrapporten / plattegronden / video’s.
Vaste partner met scherpe tarieven
Jij stuurt het door onder je eigen naam en branding. Ik lever white-label en blijf op de achtergrond.
Volledig remote aangeleverd
Op basis van jouw plattegronden, schetsen en foto’s. Geen gedoe met planning of afspraken.
Binnen 1 werkdag geleverd
Korte doorlooptijd zodat jij je klant direct kunt bedienen en door kunt met je volgende shoot. Makkelijk én snel.
Altijd flexibel meedenken
Extra wensen? Spoed? Huisstijl? Speciale intro nodig? Ik pas het aan op jouw workflow.
Ontzorging = meer omzet
Jij focust op fotografie en klantcontact, ik fix de meetrapporten / plattegronden / video’s.
Vaste partner met scherpe tarieven
Jij stuurt het door onder je eigen naam en branding. Ik lever white-label en blijf op de achtergrond.
Volledig remote aangeleverd
Op basis van jouw plattegronden, schetsen en foto’s. Geen gedoe met planning of afspraken.
Binnen 1 werkdag geleverd
Korte doorlooptijd zodat jij je klant direct kunt bedienen en door kunt met je volgende shoot. Makkelijk én snel.
Altijd flexibel meedenken
Extra wensen? Spoed? Huisstijl? Speciale intro nodig? Ik pas het aan op jouw workflow.
Ontzorging = meer omzet
Jij focust op fotografie en klantcontact, ik fix de meetrapporten / plattegronden / video’s.
Vaste partner met scherpe tarieven
Jij stuurt het door onder je eigen naam en branding. Ik lever white-label en blijf op de achtergrond.
Volledig remote aangeleverd
Op basis van jouw plattegronden, schetsen en foto’s. Geen gedoe met planning of afspraken.
Binnen 1 werkdag geleverd
Korte doorlooptijd zodat jij je klant direct kunt bedienen en door kunt met je volgende shoot. Makkelijk én snel.
Altijd flexibel meedenken
Extra wensen? Spoed? Huisstijl? Speciale intro nodig? Ik pas het aan op jouw workflow.
Ontzorging = meer omzet
Jij focust op fotografie en klantcontact, ik fix de meetrapporten / plattegronden / video’s.
500+ opdrachten afgerond
Binnen 1 werkdag geleverd
100% remote
500+ opdrachten afgerond
Binnen 1 werkdag geleverd
100% remote
500+ opdrachten afgerond
Binnen 1 werkdag geleverd
100% remote
Hoe werkt het?
Het werkt heel eenvoudig. Jij levert de beschikbare informatie aan (plattegrond, schets, Floorplanner export of foto’s), en ik zet dit om naar een professioneel NEN 2580 meetrapport. Wil je ook een 2D plattegrond of woningvideo? Dan lever ik die direct mee, zodat je één complete woningpresentatie hebt.
1
Jij levert tekeningen, foto’s en/of video aan
Stuur me duidelijke tekeningen, plattegronden of foto’s van de woning. Wil je ook een woningvideo? Dan kun je de videobeelden aanleveren of overleggen met je fotograaf. Zodra ik de opdracht bevestig, ga ik voor je aan de slag.
1
Jij levert tekeningen, foto’s en/of video aan
Stuur me duidelijke tekeningen, plattegronden of foto’s van de woning. Wil je ook een woningvideo? Dan kun je de videobeelden aanleveren of overleggen met je fotograaf. Zodra ik de opdracht bevestig, ga ik voor je aan de slag.
2
Ik werk het professioneel uit tot een compleet pakket
Ik lever een meetrapport met GO en BVO, opgesteld volgens de meetinstructie (NEN 2580). Indien gewenst voeg ik een duidelijke plattegrond toe en monteer ik een strakke woningvideo, ideaal voor Funda of verkoopbrochure.
2
Ik werk het professioneel uit tot een compleet pakket
Ik lever een meetrapport met GO en BVO, opgesteld volgens de meetinstructie (NEN 2580). Indien gewenst voeg ik een duidelijke plattegrond toe en monteer ik een strakke woningvideo, ideaal voor Funda of verkoopbrochure.
3
Je ontvangt alles netjes digitaal
Je ontvangt het meetrapport, de plattegrond en/of de video digitaal via e-mail. Liever via Dropbox, WeTransfer of je eigen klantomgeving? Geen probleem, ik pas me aan. Heb je haast? Dan is spoedlevering mogelijk in overleg.
3
Je ontvangt alles netjes digitaal
Je ontvangt het meetrapport, de plattegrond en/of de video digitaal via e-mail. Liever via Dropbox, WeTransfer of je eigen klantomgeving? Geen probleem, ik pas me aan. Heb je haast? Dan is spoedlevering mogelijk in overleg.
Mijn tarieven
Mijn tarieven zijn transparant en gebaseerd op de grootte en complexiteit van de woning. Je weet vooraf waar je aan toe bent, zonder verborgen kosten. Voor vaste samenwerkingen (regelmatige opdrachten) kan ik een scherper tarief aanbieden.
Meetrapport
tot 100 m² GO
Ideaal voor kleinere koophuizen zoals eengezinswoningen of rijwoningen. Een duidelijk NEN 2580 meetrapport, snel opgesteld op basis van aangeleverde plattegronden/schetsen en foto’s. Perfect voor een betrouwbare woningpresentatie.
€40,-
Meetrapport
100-200 m² GO
Geschikt voor middelgrote koophuizen zoals ruimere tussenwoningen of hoekwoningen. Een compleet en overzichtelijk NEN 2580 meetrapport, met nette verdeling per verdieping en ruimtes, gemaakt op basis van aangeleverde gegevens.
€50,-
Meetrapport
200+ m² GO
Voor grotere koophuizen zoals vrijstaande woningen of woningen met meerdere verdiepingen/aanbouwen. Een uitgebreid NEN 2580 meetrapport met extra detail en overzicht, ideaal voor makelaars die alles strak en professioneel willen aanleveren.
€60,-
Woningvideo
Een sfeervolle video met rustige overgangen, achtergrondmuziek en vloeiende cuts op de beat. Gemaakt van het bestaande fotomateriaal van de woning. Perfect voor social media of Funda.
€40,-
2D Plattegrond
Een heldere, professioneel opgemaakte plattegrond op basis van jouw meetgegevens en/of tekeningen met eventueel meerdere bouwlagen. Ideaal als aanvulling op het meetrapport.
€30,-
Meetrapport
tot 100 m² GO
Ideaal voor kleinere koophuizen zoals eengezinswoningen of rijwoningen. Een duidelijk NEN 2580 meetrapport, snel opgesteld op basis van aangeleverde plattegronden/schetsen en foto’s. Perfect voor een betrouwbare woningpresentatie.
€40,-
Meetrapport
100-200 m² GO
Geschikt voor middelgrote koophuizen zoals ruimere tussenwoningen of hoekwoningen. Een compleet en overzichtelijk NEN 2580 meetrapport, met nette verdeling per verdieping en ruimtes, gemaakt op basis van aangeleverde gegevens.
€50,-
Meetrapport
200+ m² GO
Voor grotere koophuizen zoals vrijstaande woningen of woningen met meerdere verdiepingen/aanbouwen. Een uitgebreid NEN 2580 meetrapport met extra detail en overzicht, ideaal voor makelaars die alles strak en professioneel willen aanleveren.
€60,-
Woningvideo
Een sfeervolle video met rustige overgangen, achtergrondmuziek en vloeiende cuts op de beat. Gemaakt van het bestaande fotomateriaal van de woning. Perfect voor social media of Funda.
€40,-
2D Plattegrond
Een heldere, professioneel opgemaakte plattegrond op basis van jouw meetgegevens en/of tekeningen met eventueel meerdere bouwlagen. Ideaal als aanvulling op het meetrapport.
€30,-
Meetrapport
tot 100 m² GO
Ideaal voor kleinere koophuizen zoals eengezinswoningen of rijwoningen. Een duidelijk NEN 2580 meetrapport, snel opgesteld op basis van aangeleverde plattegronden/schetsen en foto’s. Perfect voor een betrouwbare woningpresentatie.
€40,-
Meetrapport
100-200 m² GO
Geschikt voor middelgrote koophuizen zoals ruimere tussenwoningen of hoekwoningen. Een compleet en overzichtelijk NEN 2580 meetrapport, met nette verdeling per verdieping en ruimtes, gemaakt op basis van aangeleverde gegevens.
€50,-
Meetrapport
200+ m² GO
Voor grotere koophuizen zoals vrijstaande woningen of woningen met meerdere verdiepingen/aanbouwen. Een uitgebreid NEN 2580 meetrapport met extra detail en overzicht, ideaal voor makelaars die alles strak en professioneel willen aanleveren.
€60,-
Woningvideo
Een sfeervolle video met rustige overgangen, achtergrondmuziek en vloeiende cuts op de beat. Gemaakt van het bestaande fotomateriaal van de woning. Perfect voor social media of Funda.
€40,-
2D Plattegrond
Een heldere, professioneel opgemaakte plattegrond op basis van jouw meetgegevens en/of tekeningen met eventueel meerdere bouwlagen. Ideaal als aanvulling op het meetrapport.
€30,-
*Genoemde prijzen zijn excl. btw
500+ opdrachten afgerond
Binnen 1 werkdag geleverd
100% remote
500+ opdrachten afgerond
Binnen 1 werkdag geleverd
100% remote
500+ opdrachten afgerond
Binnen 1 werkdag geleverd
100% remote
Waarom laten uitbesteden?
Het maken van NEN 2580 meetrapporten, plattegronden en woningvideo’s kost tijd en precisie. Door dit uit te besteden houd je focus op fotografie en klantcontact, terwijl je klanten een complete woningpresentatie krijgen.
Kenmerk
Zelf doen
Uitbesteden via SAM2580
Tijdsinvestering
Uren kwijt aan rekenen, Floorplanner en video bewerken
Binnen 1 werkdag geleverd, jij houdt tijd over voor jezelf
Nauwkeurigheid
Kans op meetfouten of inconsistenties
Volledig volgens NEN 2580 meetinstructie, altijd correct
Presentatiekwaliteit
Beperkt door eigen software/skills
Professioneel vormgegeven plattegronden en woningvideo’s
Flexibiliteit
Moeilijk bij drukke weken of meerdere opdrachten
Altijd op tijd geleverd, geen piekdrukte stress
Extra diensten
Zelf alles uitzoeken en combineren
Alles inclusief: meetrapport, plattegrond, woningvideo, white-label mogelijk
Kosten
Tijd gaat ten koste van opdrachten en inkomsten
Flexibel tarief bij langdurige samenwerking
500+ opdrachten afgerond
Binnen 1 werkdag geleverd
100% remote
500+ opdrachten afgerond
Binnen 1 werkdag geleverd
100% remote
Slimme tips voor vastgoedprofessionals
Slimme tips voor vastgoed-professionals
Ontdek praktische tips en inzichten over NEN 2580 meetrapporten, plattegronden en woningvideo’s. In de Kennisbank deel ik kennis waarmee makelaars en vastgoedfotografen hun woningpresentaties verbeteren en opdrachten sneller afronden.
500+ opdrachten afgerond
Binnen 1 werkdag geleverd
100% remote
500+ opdrachten afgerond
Binnen 1 werkdag geleverd
100% remote
500+ opdrachten afgerond
Binnen 1 werkdag geleverd
100% remote
500+ opdrachten afgerond
Binnen 1 werkdag geleverd
100% remote
500+ opdrachten afgerond
Binnen 1 werkdag geleverd
100% remote
Jouw vragen beantwoord
Hier vind je antwoorden op de meestgestelde vragen over mijn werkwijze, aanlevering en samenwerkingen. Staat jouw vraag er niet tussen? Stuur gerust een bericht.

Woningen optimaal presenteren, zonder dat jij tijd verliest.

Sam Schouten

Woningen optimaal presenteren, zonder dat jij tijd verliest.

Sam Schouten
Voor wie zijn jouw diensten bedoeld?
Mijn diensten zijn vooral bedoeld voor vastgoedfotografen en makelaars die hun klanten extra waarde willen bieden. Ik werk white-label, zodat het werk op jouw naam of merk kan worden geleverd.
Moet je bij mij op locatie komen?
Nee! Ik werk volledig remote. Je stuurt de plattegronden, schetsen of foto’s, en ik maak het meetrapport, de plattegrond of woningvideo op afstand.
Bied je vaste samenwerkingen aan?
Ja! Voor fotografen of makelaars die regelmatig opdrachten doorgeven, werk ik tegen een lager tarief. Zo wordt het makkelijker en voordeliger om vaker samen te werken.
Kan het in de huisstijl van mijn kantoor of merk?
Ja, zowel plattegronden als rapporten kunnen worden aangepast aan jouw kleuren en stijl, zodat alles professioneel en consistent oogt.
Hoe snel kan ik het ontvangen?
Zodra alle benodigde bestanden zijn aangeleverd, kan ik meestal binnen 1 werkdag alles opleveren, klaar voor gebruik bij verkoop, verhuur of presentatie.
Voor wie zijn jouw diensten bedoeld?
Mijn diensten zijn vooral bedoeld voor vastgoedfotografen en makelaars die hun klanten extra waarde willen bieden. Ik werk white-label, zodat het werk op jouw naam of merk kan worden geleverd.
Moet je bij mij op locatie komen?
Bied je vaste samenwerkingen aan?
Kan het in de huisstijl van mijn kantoor of merk?
Hoe snel kan ik het ontvangen?
Voor wie zijn jouw diensten bedoeld?
Mijn diensten zijn vooral bedoeld voor vastgoedfotografen en makelaars die hun klanten extra waarde willen bieden. Ik werk white-label, zodat het werk op jouw naam of merk kan worden geleverd.
Moet je bij mij op locatie komen?
Bied je vaste samenwerkingen aan?
Kan het in de huisstijl van mijn kantoor of merk?
Hoe snel kan ik het ontvangen?









